マンション東灘スカイハイツ
●周辺環境、マンションの魅力
東灘スカイハイツは昭和55年6月に竣工されました。
地上4階建て、総戸数24戸の小規模マンションです。
大切なパートナーであるペットと一緒に暮らすことができます。
近隣には商業施設が多数あり、生活に便利な立地です。
阪神「青木」駅まで徒歩3分。通勤や通学にも便利です。
物件概要
- 所在地
- 神戸市東灘区青木5丁目
- 価格
- 1,980 万円
- 交通
-
阪神本線 青木駅 まで 徒歩3分
JR東海道・山陽本線 摂津本山駅 まで 徒歩18分
- 専有面積
- 壁芯 93.16㎡
- バルコニー
- 17.17㎡
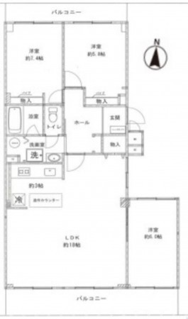
- 間取り
- 3LDK
- 所在階/階数
- 4階 / 4階
- 築年数
-
1980年
(昭和55)
6月
築45年 - 土地権利
- 所有権
- 構造
- RC(鉄筋コンクリート) 造 地上4階建
- 総戸数
- 24戸
- 小学校区
- 本庄 (800m)
- 中学校区
- 本庄 (700m)
- 現況
- 空
- 引渡時期
- 相談
- 駐車場
- 有
- 駐車場月額
- 17,000〜20,000円/月
- 管理形態
- 全部委託
- 管理方式
- 管理人日勤
- 管理会社
- (株)長谷工コミュニティ
- 管理費
- 14,910円
- 修繕積立費
- 18,630円
- ガス
- 都市ガス
- 用途地域
- 1種住居 (一部準住居を含む)
- 設備・条件
- システムキッチン、シャンプードレッサー
- 備考
-
2面バルコニー
眺望良好 - 取引態様
- 仲介
その他周辺物件
この物件は487人の方が興味を持っています。


