マンションネオハイツ三宮
●周辺地域、マンションの魅力
ネオハイツ三宮は昭和56年1月に竣工されました。
地上11階建て、総戸数73戸の中規模マンションです。
周辺はオフィスやマンションが多く、平坦地です。近くには磯上公園もございます。
また、3WAYアクセスが可能な便利な立地です。
●このお部屋の魅力
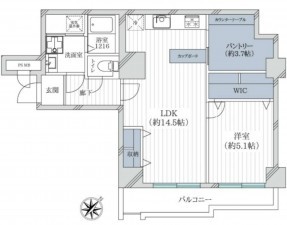
6階部分、間取りは1LDKタイプです。
約3.7畳のパントリーがございますので、生活品のストック置き場としてはもちろん、家事スペースとしてもお使いいただけます。
全てのお部屋に収納が備わっていますので、お部屋をすっきりとお使いいただけます。
■2025年6月にリフォームが完成しています。
フローリング張替
クロス張替
フロアタイル張替建具交換
各居室器具一部新規交換
システムキッチン交換(LIXIL:シエラ)(浄水器一体型水栓、食洗器)
トイレ便器交換(TOTO:ZR)(温水洗浄便座)
和室→洋室変更
パントリー新設
カップボード設置照明器具
レースカーテン新調
ダウンライト新設
ハウスクリーニング他
物件概要
- 所在地
- 神戸市中央区浜辺通3丁目
- 価格
- 2,298 万円
- 交通
-
神戸新交通ポートアイランド線 貿易センター駅 まで 徒歩2分
JR東海道・山陽本線 三ノ宮駅 まで 徒歩10分
神戸市営地下鉄海岸線 三宮・花時計前駅 まで 徒歩7分
- 専有面積
- 壁芯 58.17㎡
- バルコニー
-
6.26㎡
(南東側)
- 間取り
- 1LDK
- 所在階/階数
- 6階 / 11階
- 築年数
-
1981年
(昭和56)
1月
築44年 - 土地権利
- 所有権
- 構造
- SRC(鉄骨鉄筋コンクリート) 造 地上11階建
- 総戸数
- 73戸
- 小学校区
- 中央 (1420m)
- 中学校区
- 布引 (2420m)
- 現況
- 空
- 引渡時期
- 即時
- 駐車場
- 空無
- 駐車場月額
- 30,000円/月
- 管理形態
- 全部委託
- 管理方式
- 管理人巡回
- 管理会社
- (株)長谷工コミュニティ
- 管理費
- 11,630円
- 修繕積立費
- 6,980円
- ガス
- 都市ガス
- 用途地域
- 商業
- 設備・条件
- システムキッチン、食器洗浄乾燥機、シャンプードレッサー、浴室乾燥機、洗浄便座、ウォークインクローゼット、ペット可、エレベーター、ペット不可
- 備考
-
駐輪場空無:月額100円
バイク置き場空無:月額400円
トランクルーム管理費:月額430円
- 取引態様
- 仲介
その他周辺物件
この物件は491人の方が興味を持っています。


