マンションエイジングコート三宮
●マンションの特徴、周辺環境
エイジングコート三宮は2006年1月に竣工しました。
地上15階建て、総戸数80戸の中規模マンションです。
”悠々自適に愉しみながら、そして安心して暮らしていただける住まい”を目指したシニア向け分譲マンション「エイジングコート」シリーズの第1棟目としてこちらのマンションは誕生しました。
24時間有人管理で、コンシェルジュサービスがあります。
エレベーターが2基あり、プライバシーが保たれます。
最上階には無料の大浴場と露天風呂、屋上庭園がございます。
2階には居宅介護事業所(株式会社ケア21)、レストランがございます。
1階部分には内科「ぶどうの木しゅどう内科循環器科クリニック」がございます。
3路線3駅が徒歩圏内で、通勤通学にはもちろん、お出かけにも便利な立地です。
近隣にはルミナリエで有名な東遊園地や旧居留地、買い物は神戸阪急や三宮センター街、神戸市役所、神戸市立三宮図書館、中央区役所などがあり、買い物や生活にも非常に便利な立地にあります。
●このお部屋の魅力
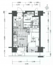
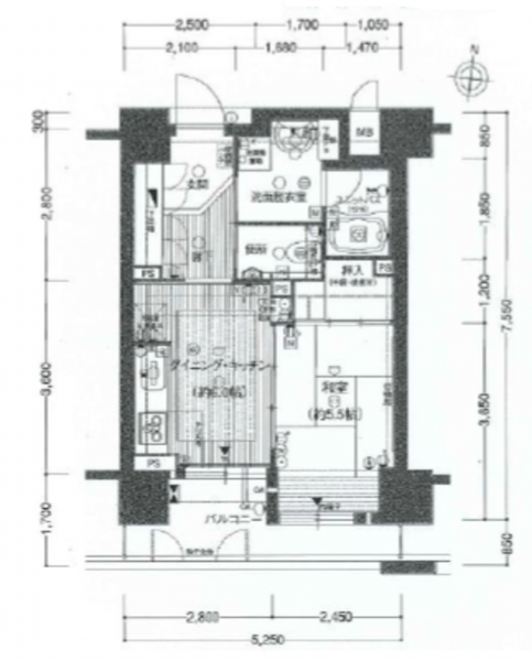
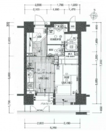
3階部分、1DKタイプのお部屋でございます。
南向きのバルコニーで日当たりも良く快適にお過ごしいただけます。
ダイニングキッチン仕様のため、お料理の匂いが生活空間に行き渡りにくいのも魅力です。
支払例
※三井住友銀行/借入金1,400万円、返済期間35年、金利0.595%(変動)の場合
※審査により金利は変わる可能性があります。
物件概要
- 所在地
- 神戸市中央区磯上通3丁目
- 価格
- 1,400 万円
- 交通
-
JR東海道・山陽本線 三ノ宮駅 まで 徒歩9分
阪急神戸本線 神戸三宮駅 まで 徒歩12分
阪神本線 神戸三宮駅 まで 徒歩8分
- 専有面積
- 壁芯 36.50㎡
- バルコニー
-
6.84㎡
(南側)
- 間取り
- 1DK
- 所在階/階数
- 3階 / 15階
- 築年数
-
2006年
(平成18)
1月
築20年 - 土地権利
- 所有権
- 構造
- RC(鉄筋コンクリート) 造 地上15階建
- 総戸数
- 79戸
- 小学校区
- 中央 (1200m)
- 中学校区
- 布引 (2200m)
- 現況
- 空
- 引渡時期
- 相談
- 駐車場
- 駐車場月額
- 15,000〜17,000円/月
- 管理形態
- 全部委託
- 管理方式
- 管理人常駐
- 管理会社
- (株)日本ネットワークサービス
- 管理費
- 32,000円
- 修繕積立費
- 10,950円
- ガス
- 都市ガス
- 用途地域
- 商業
- 設備・条件
- シャンプードレッサー、オートロック、ペット可、エレベーター、ゲストルーム カラオケルーム 談話室 屋上テラス 大浴場 露天風呂 レストラン コンシェルジュサービス
- 備考
- 駐輪場:月額200円~
- 取引態様
- 仲介
その他周辺物件
*35年ローン / 金利0.595%の場合
※審査により金利は変わる可能性があります。
詳しくは詳細ページをご覧ください。
この物件は224人の方が興味を持っています。


