マンションロイヤルヒル神戸諏訪山
●周辺環境、マンションの魅力
ロイヤルヒル神戸諏訪山は1997年1月に竣工されました。
地下1階付地上6階建て、総戸数26戸の小規模マンションです。
大切なパートナーであるペットと一緒に暮らすことができます。
3沿線の利用が可能で、通勤通学にはもちろん、お出かけにも便利な立地です。
●このお部屋の魅力
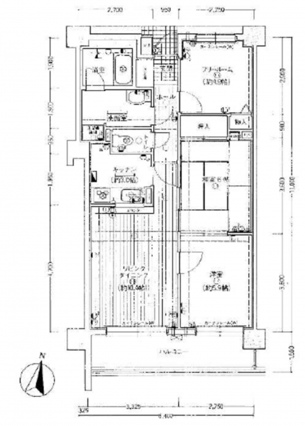
2階部分、2LDKタイプのお部屋にフリールームが付いております。
カウンターキッチンですので、家族の顔が見え日々のお料理も楽しくなりそうです。
フリールームをはじめ各居室に収納が備わっていますので、お部屋をすっきりとお使いいただけますね。
支払例
※三井住友銀行/借入金2,200万円、返済期間35年、金利0.595%(変動)の場合
※審査により金利は変わる可能性があります。
物件概要
- 所在地
- 神戸市中央区諏訪山町
- 価格
- 2,200 万円
- 交通
-
神戸市西神・山手線 県庁前駅 まで 徒歩10分
JR東海道・山陽本線 元町駅 まで 徒歩14分
神戸高速鉄道 花隈駅 まで 徒歩14分
- 専有面積
- 67.07㎡
- バルコニー
-
9.11㎡
(南側)
- 間取り
- 2LDK
- 所在階/階数
- 2階 / 6階
- 築年数
-
1997年
(平成9)
1月
築29年 - 土地権利
- 所有権
- 構造
- SRC(鉄骨鉄筋コンクリート) 造 地下1階 地上6階建
- 総戸数
- 26戸
- 小学校区
- こうべ (350m)
- 中学校区
- 神戸生田 (1000m)
- 現況
- 空
- 引渡時期
- 相談
- 駐車場
- 空有
- 駐車場月額
- 28,000円/月
- 管理形態
- 全部委託
- 管理方式
- 管理人巡回
- 管理会社
- (株)シティ管財
- 管理費
- 12,958円
- 修繕積立費
- 11,810円
- ガス
- 用途地域
- 1種中高
- 設備・条件
- ペット可、エレベーター
- 備考
- 取引態様
- 仲介
その他周辺物件
*35年ローン / 金利0.595%の場合
※審査により金利は変わる可能性があります。
詳しくは詳細ページをご覧ください。
この物件は231人の方が興味を持っています。


