マンションアステシオ御影
●周辺環境、マンションの魅力
アステシオ御影は1990年4月に竣工されました。
2024年11月に大規模修繕工事が完成しています。
地下1階地上5階建て、総戸数18戸の小規模マンションです。
最寄りの阪急「御影」駅までは徒歩5分と、アクセス良好な立地が魅力です。
また周辺にはスーパーやコンビニ等の買物施設のほか、香雪美術館庭園、レストラン等の飲食店も充実しています。
●このお部屋の魅力
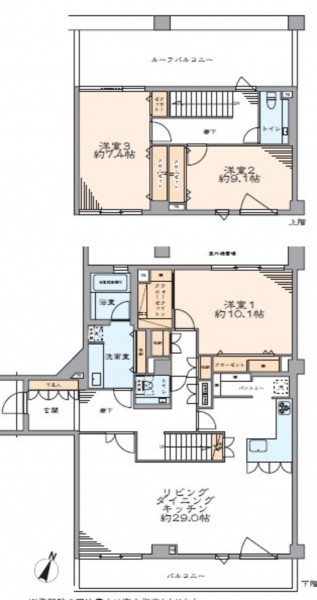
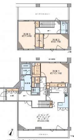
4.5階部分、間取りは3LDKタイプです。
メゾネットタイプにつき、戸建感覚でお住まいいただけます。
約22㎡のルーフバルコニーがありますので、ガーデニングや家庭菜園、お友達を呼んでちょっとしたパーティーもできます。
約29畳の広々としたLDKですので、ご家族でのリラックスタイムをゆったりとお過ごしいただけますね。
■2025年12月にリフォームが完成しています。
●フローリング新規貼替
●壁・天井クロス新規貼替
●建具・玄関収納等新規交換
●照明器具新規設置
●給湯器新規交換
●エアコン五基新規設置
●TOTO製洗面化粧台新規交換
●TOTO製洗浄便座付タンクレストイレ新規交換
●TOTO製ユニットバス新規交換(浴室換気乾燥機付)
●田中工藝製システムキッチン新規交換(食器洗い機付) …等
支払例
※三井住友銀行/借入金10,990万円、返済期間35年、金利1.075%(変動)の場合
※審査により金利は変わる可能性があります。
物件概要
- 所在地
- 神戸市東灘区御影郡家2丁目
- 価格
- 10,990 万円
- 交通
-
阪急神戸本線 御影駅 まで 徒歩5分
JR東海道・山陽本線 住吉駅 まで 徒歩12分
- 専有面積
- 壁芯 152.35㎡
- バルコニー
-
12.23㎡
(南東側)
- 間取り
- 3LDK
- 所在階/階数
- 4~5階 / 5階
- 築年数
-
1990年
(平成2)
4月
築36年 - 土地権利
- 所有権
- 構造
- RC(鉄筋コンクリート) 造 地下1階 地上5階建
- 総戸数
- 18戸
- 小学校区
- 御影北 (590m)
- 中学校区
- 御影 (690m)
- 現況
- 空
- 引渡時期
- 即時
- 駐車場
- 空有
- 駐車場月額
-
15,000円/月
駐車場専用使用権付 - 管理形態
- 全部委託
- 管理方式
- 管理人日勤
- 管理会社
- 野村不動産パートナーズ(株)
- 管理費
- 61,400円
- 修繕積立費
- 36,500円
- ガス
- 都市ガス
- 用途地域
- 1種住居
- 設備・条件
- システムキッチン、カウンターキッチン、食器洗浄乾燥機、シャンプードレッサー、洗浄便座、浴室乾燥機、ルーフバルコニー、ウォークインクローゼット、CATV、オートロック、トイレ2箇所、エレベーター、ペット不可
- 備考
-
ルーフバルコニー面積:22.37㎡
駐輪場空有:無償
バイク置場:無 - 取引態様
- 仲介
その他周辺物件
*35年ローン / 金利1.075%の場合
※審査により金利は変わる可能性があります。
詳しくは詳細ページをご覧ください。
この物件は243人の方が興味を持っています。


