マンションシティタワー神戸三宮
●周辺地域、マンションの魅力
シティタワー神戸三宮は、地下1階地上54階建て、総戸数640戸の超高層レジデンスです。
JR三ノ宮駅より徒歩5分、通勤、通学に便利な立地でございます。
2層吹き抜けで高級感溢れるロビーとなっており、ゆったり過ごしていただける大空間です。複数ソファが設置されており、待ち合わせや歓談など様々な用途で使用していただけます。
ロビーの一角ではコンシェルジュカウンターがお客様の日常生活をサポート。クリーニング、宅急便の取り次ぎや、タクシー手配など様々なサービスを展開しております
地上39階部分には、神戸の街並みを一望できるスカイラウンジがございます。パーティルームもご利用いただけます。
また、各階にゴミステーションがあり、24時間ゴミ出し可能です。
そして、大切なペットと暮らすことができるのも、大きなメリットですね。
エントランスはダブルオートロックシステムを採用しており、防犯面も安心です。
24時間管理・警備体制が配されている他、建物躯体は住友不動産と大林組による免震タワーで、非常用発電機や地震速報サービスなど災害対策もなされています。
●このお部屋の魅力
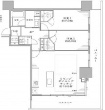
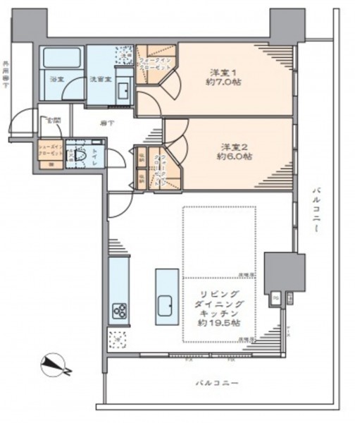
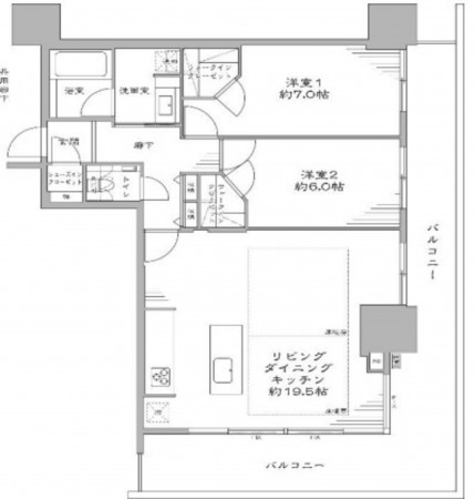
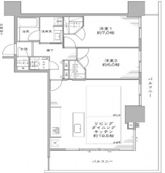
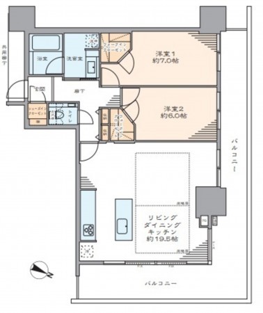
26階部分、間取りは2LDKタイプです。
お部屋からは六甲山、大阪湾を一望いただけます。
全てのお部屋に開口部がございますので、風通しよく快適にお過ごしいただけます。
ウォークインクローゼットをはじめ各居室に収納がございますので、お部屋をすっきりとお使いいただけます。
■2025年12月下旬にフルリノベーションが完成しています。
●フローリング新規貼替
●壁・天井クロス新規貼替
●建具・玄関収納等新規交換
●LIXIL製洗面化粧台新規交換
●照明器具新規設置 ※シーリングは、販売には含まれません
●エアコン一基新規設置
●床暖房マット新規交換
●ディスポーザー新規交換
●TOTO製洗浄便座付タンクレストイレ新規交換
●TOTO製追焚機能(循環式)付ユニットバス新規交換(浴室換気乾燥機付)
●LIXIL製システムキッチン新規交換(食器洗い機付) …等
支払例
※三井住友銀行/借入金14,990万円、返済期間35年、金利1.075%(変動)の場合
※審査により金利は変わる可能性があります。
物件概要
- 所在地
- 神戸市中央区旭通4丁目
- 価格
- 14,990 万円
- 交通
-
JR東海道・山陽本線 三ノ宮駅 まで 徒歩6分
阪神本線 神戸三宮駅 まで 徒歩6分
阪急神戸本線 神戸三宮駅 まで 徒歩8分
- 専有面積
- 壁芯 74.06㎡
- バルコニー
-
28.02㎡
(北東側)
- 間取り
- 2LDK
- 所在階/階数
- 26階 / 54階
- 築年数
-
2013年
(平成25)
1月
築13年 - 土地権利
- 所有権
- 構造
- RC(鉄筋コンクリート) 造 地下1階 地上54階建
- 総戸数
- 640戸
- 小学校区
- 中央 (850m)
- 中学校区
- 布引 (1900m)
- 現況
- 空
- 引渡時期
- 相談
- 駐車場
- 空有
- 駐車場月額
- 29,000〜42,200円/月
- 管理形態
- 全部委託
- 管理方式
- 管理人常駐
- 管理会社
- 住友不動産建物サービス(株)
- 管理費
- 15,700円
- 修繕積立費
- 20,700円
- ガス
- 都市ガス
- 用途地域
- 商業
- 設備・条件
- システムキッチン、カウンターキッチン、食器洗浄乾燥機、シャンプードレッサー、洗浄便座、浴室乾燥機、床暖房、ウォークインクローゼット、モニタ付インターホン、オートロック、ペット可、角部屋、エレベーター、宅配ボックス コンシェルジュサービス
- 備考
-
団地管理費:月額500円
駐輪場:空有(月額380円)
バイク置場:空有(月額1,250円~2,500円) - 取引態様
- 仲介
その他周辺物件
*35年ローン / 金利1.075%の場合
※審査により金利は変わる可能性があります。
詳しくは詳細ページをご覧ください。
この物件は388人の方が興味を持っています。


