マンションローレル・トアスクエア
●マンションの特徴・周辺環境
ローレル・トアスクエアの間取りは1LDK~3LDKが中心で、ファミリー世帯に適しています。
飲食店やブティックなどが並ぶエリアの山の手に立地しています。
お買い物好きには絶好の環境ですね。
北側には六甲山、南側には神戸の街並みが広がる最高の立地条件です。
マンションから徒歩約2分のところには『セブンイレブン』があります。
『生田神社』や『北野工房のまち』にも程近く、神戸の生活を満喫できそうですね。
JR東海道線『三ノ宮駅』から徒歩約7分で、5駅5路線を使い分ける事ができます。
【修繕履歴】
令和6年5月 インターホン設備更新工事
令和6年2月 消防用ホース更新工事
令和4年8月 照明設備LED化工事
●このお部屋の魅力
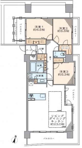
13階部分、間取りは3LDKタイプです。
シューズインクローゼットがございますので、ベビーカーやアウトドア用品などを置いていただけます。
約23畳の広々としたLDKは2面採光で、明るいお部屋でゆったりとリラックスタイムをお過ごしいただけますね。
■2025年10月にリフォームが完成します。
●フローリング新規貼替
●壁・天井クロス新規貼替
●建具・玄関収納等新規交換
●照明器具新規設置
●給湯器新規交換
●エアコン一基新規設置
●床暖房マット新規設置
●LIXIL製洗面化粧台新規交換
●TOTO製洗浄便座付タンクレストイレ新規交換
●TOTO製追焚機能(循環式)付ユニットバス新規交換(浴室換気乾燥機付)
●田中工藝製システムキッチン新規交換(食器洗い機付)等
支払例
※三井住友銀行/借入金8,990万円、返済期間35年、金利1.075%(変動)の場合
※審査により金利は変わる可能性があります。
物件概要
- 所在地
- 神戸市中央区中山手通2丁目
- 価格
- 8,990 万円
- 交通
-
JR東海道・山陽本線 三ノ宮駅 まで 徒歩7分
阪急神戸本線 神戸三宮駅 まで 徒歩8分
阪神本線 神戸三宮駅 まで 徒歩8分
- 専有面積
- 壁芯 91.31㎡
- バルコニー
-
30.00㎡
(南東側)
- 間取り
- 3LDK
- 所在階/階数
- 13階 / 14階
- 築年数
-
2001年
(平成13)
2月
築25年 - 土地権利
- 所有権
- 構造
- SRC(鉄骨鉄筋コンクリート) 造 地下1階 地上14階建
- 総戸数
- 73戸
- 小学校区
- こうべ (600m)
- 中学校区
- 神戸生田 (650m)
- 現況
- 空
- 引渡時期
- 即時
- 駐車場
- 無
- 駐車場月額
- 管理形態
- 全部委託
- 管理方式
- 管理人日勤
- 管理会社
- 総合ハウジングサービス(株)
- 管理費
- 15,070円
- 修繕積立費
- 27,390円
- ガス
- 都市ガス
- 用途地域
- 商業
- 設備・条件
- システムキッチン、カウンターキッチン、食器洗浄乾燥機、シャンプードレッサー、洗浄便座、浴室乾燥機、追い焚き、床暖房、ウォークインクローゼット、CATV、モニタ付インターホン、オートロック、角部屋、エレベーター、宅配ボックス ペット不可
- 備考
-
ルーフバルコニー面積:1.50㎡
ポーチ面積:2.17㎡
事務所使用可
駐輪場:各住戸1台割り当てあり、無償
バイク置場:無
- 取引態様
- 仲介
その他周辺物件
*35年ローン / 金利1.075%の場合
※審査により金利は変わる可能性があります。
詳しくは詳細ページをご覧ください。
この物件は261人の方が興味を持っています。


