マンションハイエクセル芦屋南
●周辺環境、マンションの魅力
ハイエクセル芦屋南は1998年3月に竣工されました。
地上8階建て、総戸数21戸の小規模マンションです。
徒歩圏内にスーパーがございますので、日々のお買い物にも困りませんね。
●このお部屋の魅力
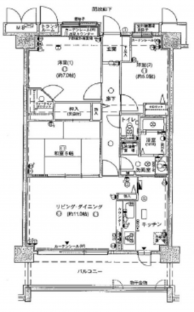
6階部分、3LDKタイプのお部屋でございます。
最上階のため、眺望良好です。
南向きのバルコニーで陽当たりも良く快適にお過ごしいただけます。
ウォークインクローゼットをはじめ、収納が豊富にございますので、お部屋をすっきりとお使いいただけますね。
専用のトランクルームもあるので、増えがちな荷物も収納できそうです。
カウンターキッチンですので家族との会話も弾みます。
また、室内は大変丁寧にお使いいただいております。
支払例
※三井住友銀行/借入金2,480万円、返済期間35年、金利1.075%(変動)の場合
※審査により金利は変わる可能性があります。
物件概要
- 所在地
- 神戸市東灘区深江南町1丁目
- 価格
- 2,480 万円
- 交通
-
阪神本線 芦屋駅 まで 徒歩15分
阪神本線 深江駅 まで 徒歩15分
JR東海道・山陽本線 甲南山手駅 まで 徒歩24分
- 専有面積
- 74.33㎡
- バルコニー
-
12.06㎡
(南側)
- 間取り
- 3LDK
- 所在階/階数
- 6階 / 8階
- 築年数
-
1998年
(平成10)
3月
築28年 - 土地権利
- 所有権
- 構造
- RC(鉄筋コンクリート) 造 地上8階建
- 総戸数
- 21戸
- 小学校区
- 東灘 (1100m)
- 中学校区
- 本庄 (1600m)
- 現況
- 空
- 引渡時期
- 相談
- 駐車場
- 駐車場月額
-
14,000〜19,000円/月
平面19,000円、機械16,000円(上)、14,000円(下) - 管理形態
- 全部委託
- 管理方式
- 管理人巡回
- 管理会社
- (株)長谷工コミュニティ
- 管理費
- 6,690円
- 修繕積立費
- 11,150円
- ガス
- 都市ガス
- 用途地域
- 1種住居
- 設備・条件
- システムキッチン、カウンターキッチン、シャンプードレッサー、浴室乾燥機、洗浄便座、ウォークインクローゼット、オートロック、エレベーター、ペット不可
- 備考
-
住宅情報盤積立金:月額1,000円
バイク置場:2,000円
駐輪場:年額1,000円 - 取引態様
- 仲介
その他周辺物件
*35年ローン / 金利1.075%の場合
※審査により金利は変わる可能性があります。
詳しくは詳細ページをご覧ください。
この物件は297人の方が興味を持っています。


