マンションベイシティタワーズ神戸WEST
●周辺環境、マンションの魅力
ベイシティタワーズ神戸WESTは神戸開港150周年記念プロジェクトのひとつ。
2023年1月に竣工された、地下1階地上27階建てのタワーレジデンスです。
海辺のまちにシンボリックな存在感を放ちます。
24時間365日有人での管理体制が整っており、コンシェルジュサービスが居住者の暮らしを快適にサポートします。
また、不在時の荷物受取を可能にする宅配ボックス、神戸港を空から望むスカイラウンジ・パーティールーム、20階部分のゲストルーム、清々しい景色を前に汗を流すことができるフィットネスルーム、3階部分のテレワークラウンジ、ペットのグルーミング室等、多彩な共用設備がご利用いただけます(一部有料)。
周辺は住・商・遊が一体となった大規模複合開発エリアです。
阪急線・阪神線・JR線などの7路線を有する鉄道網をはじめ、港からはフェリー、さらには、新幹線や飛行機といった遠方へのアクセス環境も身近に揃った「神戸の中枢エリア」に立地しています。
支払例
※三井住友銀行/借入金8,800万円、返済期間35年、金利1.075%(変動)の場合
※審査により金利は変わる可能性があります。
物件概要
- 所在地
- 神戸市中央区新港町
- 価格
- 8,800 万円
- 交通
-
JR東海道・山陽本線 三ノ宮駅 まで 徒歩17分
阪急神戸本線 神戸三宮駅 まで 徒歩15分
神戸市営地下鉄海岸線 旧居留地・大丸前駅 まで 徒歩11分
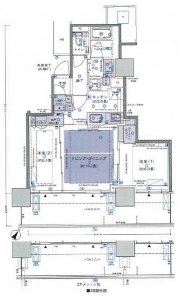
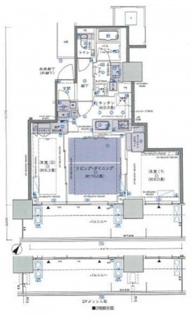
- 専有面積
- 57.01㎡
- バルコニー
-
(南側)
- 間取り
- 2LDK
- 所在階/階数
- 7階 / 27階
- 築年数
-
2023年
(令和5)
1月
築3年 - 土地権利
- 所有権
- 構造
- RC(鉄筋コンクリート) 造 地下1階 地上27階建
- 総戸数
- 346戸
- 小学校区
- こうべ (2000m)
- 中学校区
- 神戸生田 (1500m)
- 現況
- 居住中
- 引渡時期
- 相談
- 駐車場
- 駐車場月額
- 管理形態
- 全部委託
- 管理方式
- 管理人常駐
- 管理会社
- 住友不動産建物サービス(株)
- 管理費
- 21,720円
- 修繕積立費
- 6,670円
- ガス
- その他
- 用途地域
- 商業 (一部準工業を含む)
- 設備・条件
- カウンターキッチン、オール電化、シャンプードレッサー、ウォークインクローゼット、BS、CS、モニタ付インターホン、オートロック、ペット可、エレベーター、宅配ボックス スカイラウンジ パーティールーム ゲストルーム フィットネスルーム テレワークラウンジ ペットグルーミング室
- 備考
-
エレベーター2基以上有り
内覧時期 令和8年3月中旬以降
全体街区公共施設維持管理分担積立金:月額1,392円 - 取引態様
- 仲介
その他周辺物件
*35年ローン / 金利1.075%の場合
※審査により金利は変わる可能性があります。
詳しくは詳細ページをご覧ください。
この物件は158人の方が興味を持っています。


